Up フィボナッチ数列の意味 (出自) 作成: 2014-07-15
更新: 2014-07-18


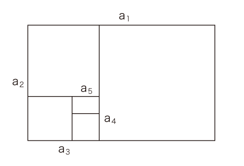
    黄金比の2辺a1, a2に対して,ユークリッド互除法を施す:

    これが,φ( = (1+√5)/2 ) の連分数展開というわけである。
    「黄金比の意味」


    この連分数表現は,つぎの数列の極限 (収束値) を表現している::
    翻って,「この数列の極限」が,φの意味になる。


    この数列の各項を計算すると:


    ここに出てきた 1, 2 (=1+1), 3 (=1+2), 5 (=2+3), 8 (=3+5), ‥‥ は,「フィボナッチ数列」と呼んでいるものである。